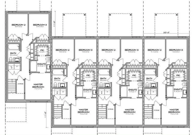
Laredo TownhomesCall for pricing — Red Deer, AB 4 bedrooms2.5 bathrooms1,408 sq. ft.Unfinished basement View fullsize View fullsize View fullsize View fullsize View fullsize View fullsize